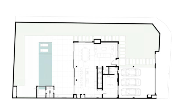
CASA PV

Projeto de Arquitetura e Interiores Residencial para Residência com 4 dormitórios

Local

Centro
Tubarão – SC

ANO

2020

ÁREA

415,00 m²

PROJETO ARQUITETÔNICO

AF, Arquitetura

ILUSTRAÇÃO
DIGITAL

AF, Arquitetura

Privacy Overview

This website uses cookies so that we can provide you with the best user experience possible. Cookie information is stored in your browser and performs functions such as recognising you when you return to our website and helping our team to understand which sections of the website you find most interesting and useful.